Försök att ange så många detaljer som möjligt.
Är du intresserad av denna bostad? Kontakta istället hyresvärden här.
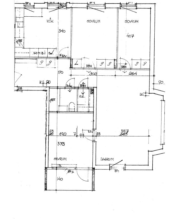
4 Rum
-
Lägenhet
89 m²
Kopierad