Ringgatan, Sala

Ringgatan, Sala

  • Lägenhet
  • |
  • 197 m²
  • |
  • 5 Rum
  • |
  • 4 månader sedan

Senaste skanning: För 7 timmar sedan info

Ikon för dagliga vyer1 visningar senaste 24 timmarna

Ställ en fråga

Om bostaden

Registrera dig för att se alla bilder och detaljer för denna hyresbostad
Registrera dig nu

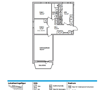
Välkommen till ditt nya urbana tillflyktsort på Ringgatan, Sala! Denna moderna 5-rumslägenhet erbjuder ett elegant och mysigt vardagsrum. Den öppna planlösningen är perfekt för underhållning, och det eleganta köket är utrustat med förstklassiga apparater. Med sitt utmärkta läge ligger du bara några steg från stadens bästa restauranger, butiker och nöjesställen. Prisvärt till 15 958 kr är denna lägenhet en fantastisk möjlighet att njuta av stadslivet när det är som bäst. Missa inte det – boka en visning idag!


Egenskaper
Bostadsstyp
Storlek
197 m²
Rum
5
Möblerad
Nej
Husdjur tillåtna
Ja
Pensionärsvänlig
Nej
Balkong
Ja

Om hyresrätten
Månadshyra
15 958 kr
Tjänster
-
Handpenning
31 916 kr
Hyresperiod
-
Datum tillgängligt
15 Maj

Har du upptäckt ett fel i annonsen?
Hjälp oss att göra Rentumo bättre - rapportera eventuell felaktig information så tar vi hand om det.
Rapportera ett problem

FAQ

Få obegränsad tillgång till all information om alla sökresultat på Rentumo med ett premiummedlemskap. Klicka här för att registrera dig för Rentumo Premium.

Du söker 1-5 uthyrningshemsidor. Vi söker mer än 350 för dig. Vi hittar över 200 nya bostäder dagligen från alla hemsidor. Du får aviseringar varje timme med nya matcher. Du sparar över 1 timmes sökning varje dag med Rentumo.

Registrera dig för en SökAgent och få aviseringar, vilket säkerställer att du är den första som vet när nya bostäder blir tillgängliga på marknaden. Klicka här för att registrera dig GRATIS.

Den här annonsen är skrapad från en annan hemsida, eftersom vi letar igenom 200 hemsidor i Sverige för att konsolidera alla annonser till en bekväm sökning för dig. Vi gör med andra ord allt sökarbete åt dig.

Insistera alltid på att träffa hyresvärdar personligen innan du gör några insättningar. Om en hyresvärd ber om en deposition innan du har sett bostaden, betrakta det som en röd flagga. Se till att du bokar en visning, träffas personligen och skaffar ett undertecknat kontrakt innan du fortsätter med några betalningar.

Om bostaden redan är uthyrd, har fel adress eller verkar felaktig - vänligen rapportera det här.

Vi skannar 225 uthyrningswebbplatser dagligen, hittar hundratals nya annonser varje dag, för att skicka snabba meddelanden till dig.

Om det finns ett problem, kommer vi att granska det snabbt - och du kan vara berättigad till en återbetalning.

Rapportera fel på annonsen här.

Läge Alla lägenheter att hyra i Sala
54 liknande hyresbostäder
Se alla 54 liknande resultat

Har du inte hittat ett nytt hem än?

  • Skapa en gratis sökagent
  • +4 200 nya bostäder dagligen
  • 7 av 10 personer som hittade ett nytt hem prenumererade på vår SökAgent
  • Dina sökkriterier

Sala
16 000 kr/månad, min. 5 rum

Månadshyra
15 958 kr
Behöver du ett lån?
Kontakt
Logo Close
Ikon för startsida