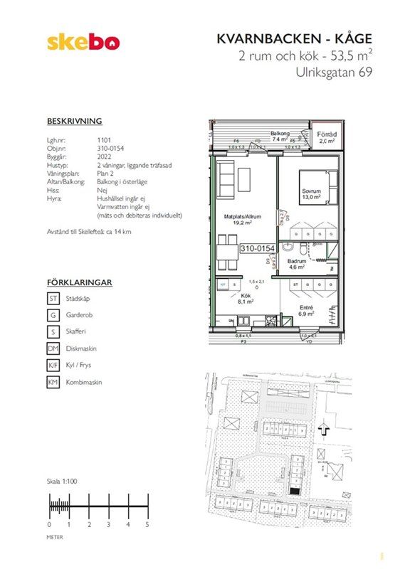
Ulriksgatan 69

Kåge, Västerbotten, Skellefteå, Ulriksgatan 69

  • Lägenhet
  • |
  • 54 m²
  • |
  • 2 Rum
  • |
  • 1 månad sedan

Ikon för dagliga vyer1 visningar senaste 24 timmarna

Ställ en fråga

Om bostaden

Registrera dig för att se alla bilder och detaljer för denna hyresbostad
Registrera dig nu

Välkommen till ditt nya urbana tillflyktsort på Kåge, Västerbotten, Skellefteå, Ulriksgatan 69! Denna moderna 2-rumslägenhet erbjuder ett elegant och mysigt vardagsrum. Den öppna planlösningen är perfekt för underhållning, och det eleganta köket är utrustat med förstklassiga apparater. Med sitt utmärkta läge ligger du bara några steg från stadens bästa restauranger, butiker och nöjesställen. Prisvärt till 9 158 kr är denna lägenhet en fantastisk möjlighet att njuta av stadslivet när det är som bäst. Missa inte det – boka en visning idag!


Egenskaper
Bostadsstyp
Storlek
54 m²
Rum
2

Om hyresrätten
Månadshyra
9 158 kr
Tjänster
-
Handpenning
-
Hyresperiod
-
Datum tillgängligt
-

Har du upptäckt ett fel i annonsen?
Hjälp oss att göra Rentumo bättre - rapportera eventuell felaktig information så tar vi hand om det.
Rapportera ett problem

FAQ

Få obegränsad tillgång till all information om alla sökresultat på Rentumo med ett premiummedlemskap. Klicka här för att registrera dig för Rentumo Premium.

Du söker 1-5 uthyrningshemsidor. Vi söker mer än 350 för dig. Vi hittar över 200 nya bostäder dagligen från alla hemsidor. Du får aviseringar varje timme med nya matcher. Du sparar över 1 timmes sökning varje dag med Rentumo.

Registrera dig för en SökAgent och få aviseringar, vilket säkerställer att du är den första som vet när nya bostäder blir tillgängliga på marknaden. Klicka här för att registrera dig GRATIS.

Den här annonsen är skrapad från en annan hemsida, eftersom vi letar igenom 300 hemsidor i Sverige för att konsolidera alla annonser till en bekväm sökning för dig. Vi gör med andra ord allt sökarbete åt dig.

Insistera alltid på att träffa hyresvärdar personligen innan du gör några insättningar. Om en hyresvärd ber om en deposition innan du har sett bostaden, betrakta det som en röd flagga. Se till att du bokar en visning, träffas personligen och skaffar ett undertecknat kontrakt innan du fortsätter med några betalningar.

Om bostaden redan är uthyrd, har fel adress eller verkar felaktig - vänligen rapportera det här.

Vi skannar 261 uthyrningswebbplatser dagligen, hittar hundratals nya annonser varje dag, för att skicka snabba meddelanden till dig.

Om det finns ett problem, kommer vi att granska det snabbt - och du kan vara berättigad till en återbetalning.

Rapportera fel på annonsen här.

Läge Alla lägenheter att hyra i Kåge
255 liknande hyresbostäder
Se alla 255 liknande resultat

Har du inte hittat ett nytt hem än?

  • Skapa en gratis sökagent
  • +2 500 nya bostäder dagligen
  • 7 av 10 personer som hittade ett nytt hem prenumererade på vår SökAgent
  • Dina sökkriterier

Kåge
10 000 kr/månad, min. 2 rum

Månadshyra
9 158 kr
Kontakt
Logo Close
Ikon för startsida